Ford Maf Wiring Diagram - IAT Sensor Performance Chip Installation Procedure: 2001-2012 Ford Ranger Iat sensor/maf sensor ... - Ford has used a hot wire type mass air flow sensor for many years that either comes with or without an internal air temperature sensor.

Ford Maf Wiring Diagram - IAT Sensor Performance Chip Installation Procedure: 2001-2012 Ford Ranger Iat sensor/maf sensor ... - Ford has used a hot wire type mass air flow sensor for many years that either comes with or without an internal air temperature sensor.. 1979, 1980, 1981, 1982, 1983, 1984, 1985, 1986. Ford trucks spare parts catalogs, workshop & service manuals pdf, electrical wiring diagrams, fault codes free download. Come join the discussion about powerstrokes, performance, modifications, troubleshooting, towing capacity, maintenance, and more! Mass air flow sensor wiring schematic. Wiring diagrams ford by model.

Maf sensor wiring diagram 19971998 1999 ford 46l 54l. Re pining harness for maf c185 to c101 page 2 ford truck. Learn how this device is connected to the ecm and vehicle electronics in general. A forum community dedicated to all ford diesel owners and enthusiasts. Ford has used a hot wire type mass air flow sensor for many years that either comes with or without an internal air temperature sensor.

Maf Wiring Diagram - Wiring Diagram
Maf Wiring Diagram - Wiring Diagram from www.explorerforum.com
Wiring diagram for 5 wire maf corvetteforum chevrolet. Wiring diagrams ford by model. So if anyone has done this before or knows which wires to use please let me know. Learn how this device is connected to the ecm and vehicle electronics in general. The more air that crosses the element, the cooler the element gets and the more voltage required to maintain its regulated temperature. Mass air flow sensor wiring schematic. Mazda 6 wiring diagram new mechanical engineering diagrams hvac. Mass air flow sensor i will first tackle the 3 wire mafs.

5.4l.chip and i have located the maf/iat sensor.

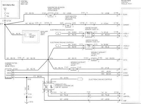
Mustang diagrams including the fuse box and wiring schematics for the following year ford mustangs: Schematic for maf ford truck enthusiasts forums. Ford mass air flow sensor wiring diagram 2001 wiring diagram ford maf wiring diagram manual e booksford mass air flow sensor wiring diagram 2001 wiring diagramgm. This is the ford maf wiring diagram. The more air that crosses the element, the cooler the element gets and the more voltage required to maintain its regulated temperature. Box on the right column to check for specific application info. Ford has used a hot wire type mass air flow sensor for many years that either comes with or without an internal air temperature sensor. Take a look at the applies to: Answered by a verified ford mechanic. This is for a new body style 2004, not the heritage / lightning models. Maf sensor wiring diagram 19971998 1999 ford 46l 54l. It is located in the airbox housing and sits between the air filter and the compressor side of the turbocharger as shown below. Wiring diagrams ford by model.

Aftermarket part reviews, general discussion about muscle cars. Testing the maf mass air flow sensor on your ford truck or suv or full size van is a very simple and easy affairthis article will walk you through the whole process without removing the maf sensor from the engine. Mazda 6 wiring diagram new mechanical engineering diagrams hvac. Ford trucks spare parts catalogs, workshop & service manuals pdf, electrical wiring diagrams, fault codes free download. This is the ford maf wiring diagram.

Where is the MAF/IAT sensor on an F250 Triton V10, 2002
Where is the MAF/IAT sensor on an F250 Triton V10, 2002 from ww2.justanswer.com
I need help figuring out which two wires ! All circuits are usually the same ~ voltage, ground, individual component, and switches. Wiring diagram of wires from the ecu to the maf iat sensor for a pcd chip in stallation on an 2003 mustang gt v8. Wiring diagrams ford by model. Checking windshield wiper switch continuity. Mustang diagrams including the fuse box and wiring schematics for the following year ford mustangs: 1979, 1980, 1981, 1982, 1983, 1984, 1985, 1986. Learn how this device is connected to the ecm and vehicle electronics in general.

Published by simply wiringforums in august, 5 2017.

Lost jeeps view topic testing the maf sensor. The 1990 maf computer wiring diagram lists a somewhat different part number for the idle speed control valve. Mass air flow sensor wiring schematic. Diagram f150 maf wiring diagram full version hd quality wiring. A forum community dedicated to all ford diesel owners and enthusiasts. Ford truck wire color and gauge chart. Testing the maf mass air flow sensor on your ford truck or suv or full size van is a very simple and easy affairthis article will walk you through the whole process without removing the maf sensor from the engine. Mass air flow sensor i will first tackle the 3 wire mafs. I need help figuring out which two wires ! Learn how this device is connected to the ecm and vehicle electronics in general. 1979, 1980, 1981, 1982, 1983, 1984, 1985, 1986. 1996 ford windstar radio wiring diagram, 1996 ford windstar stereo wiring diagram, 1996 ford windstar wiring diagrams,. If the maf sensor has 6 wires, then this is a dead giveaway that it has the air temp sensor integrated inside.

It is located in the airbox housing and sits between the air filter and the compressor side of the turbocharger as shown below. Answered by a verified ford mechanic. Re pining harness for maf c185 to c101 page 2 ford truck. I am completely lost, and thought this was the place to go. Maf sensor wiring diagram excellent wiring diagram products.

I need a wiring diagram and location of MAP sensor to the fuel injection system. for the 2002 ...
I need a wiring diagram and location of MAP sensor to the fuel injection system. for the 2002 ... from ww2.justanswer.com
This is for a new body style 2004, not the heritage / lightning models. Mass air flow sensor i will first tackle the 3 wire mafs. Related searches for maf wiring diagram diagram for electrical wiringhouse wiring diagramselectric plug. 5.4l.chip and i have located the maf/iat sensor. The 1990 maf computer wiring diagram lists a somewhat different part number for the idle speed control valve. Ford wiring diagrams page layout electrical connector. Come join the discussion about powerstrokes, performance, modifications, troubleshooting, towing capacity, maintenance, and more! Wire maf to 5 wire maf conversion diagramenginesensors wiring.

I am completely lost, and thought this was the place to go.

Pictures are great if possible! Aftermarket part reviews, general discussion about muscle cars. Checking windshield wiper switch continuity. Testing the maf mass air flow sensor on your ford truck or suv or full size van is a very simple and easy affairthis article will walk you through the whole process without removing the maf sensor from the engine. All circuits are usually the same ~ voltage, ground, individual component, and switches. Box on the right column to check for specific application info. Published by simply wiringforums in august, 5 2017. Take a look at the applies to: Come join the discussion about powerstrokes, performance, modifications, troubleshooting, towing capacity, maintenance, and more! Ford has used a hot wire type mass air flow sensor for many years that either comes with or without an internal air temperature sensor. 1979, 1980, 1981, 1982, 1983, 1984, 1985, 1986. This is the ford maf wiring diagram. Electrical wiring diagrams 1995 ford mustang maf wiring diagrams which can be in coloration have an advantage over kinds which have been black and white only.

Iklan Atas Artikel

Iklan Tengah Artikel 1

Iklan Tengah Artikel 2

Iklan Bawah Artikel