Jeep Yj Steering Column Wiring Diagram / 1989 Jeep Wrangler Wiring Harness Diagram Wiring Diagram Tags Receipts : Diagram jeep tj ignition wiring diagram full version hd.

Jeep Yj Steering Column Wiring Diagram / 1989 Jeep Wrangler Wiring Harness Diagram Wiring Diagram Tags Receipts : Diagram jeep tj ignition wiring diagram full version hd.. 1988 jeep wrangler ignition wiring diagram. Watch our steering column wiring guide video for useful tips on wiring your new steering column for your vehicle. Online manual jeep > jeep cherokee. Replacement jeep steering columns are more than just hunks of metal designed to fit in place of your current column. Posted on jun 05, 2021.

Jeep cherokee jeep cherokee briarwood jeep cherokee classic jeep cherokee country jeep cherokee laredo jeep cherokee latitude jeep cherokee limited jeep cherokee pioneer jeep cherokee se jeep cherokee sport jeep cherokee trailhawk jeep. Online manual jeep > jeep cherokee. 1988 jeep wrangler ignition wiring diagram. Diagram 1967 c10 steering column diagram wiring schematic full. The pdf includes 'body' electrical diagrams and jeep yj electrical diagrams for specific areas like:

Pin On 1987 Jeep Yj
Pin On 1987 Jeep Yj from i.pinimg.com
Whatever you are, we attempt to bring the content that matches just what you are seeking. It is printed on the inside of the fuse panel door and shows the location and function of. Diagram 1967 c10 steering column diagram wiring schematic full. This instructable is intended to clear up some of the questions regarding replacing your jeep yj wrangler's steering. They are actually fully functional products built to provide strength and additional durability for your vehicle. Collection of chevy steering column wiring diagram. I am trying to figure out the wiring for the turn signal harness on a yj steering column. I have seen the question appear on numerous jeep forums and often incorrect information is the correct answer is yes, mostly.

Chevy tilt steering column wiring diagram reference chevy wiring.

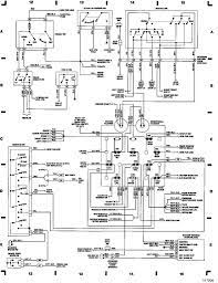
Air conditioning units, typical jeep charging unit wiring diagrams. You can save this image file to your individual device. Fresh wiring diagram yamaha aerox diagrams digramssample diagramimages wiringdiagramsample jeep taillight wiring diagram with turn signal switch and headlamp switch in steering control module. I am trying to figure out the wiring for the turn signal harness on a yj steering column. Collection of chevy steering column wiring diagram. 23 circuit direct fit jeep yj harness | painless performance. 1995 jeep grand cherokee limited none of my hazard lights. One need to never attempt operating on electrical wiring without knowing to properly read a cabling diagram, one has to learn how the components inside the system operate. Yj jeep lower steering column bearing. For instance , if a module is powered up and it also. Aftermarket steering columns for both cj and jk vehicles are fully wired. A steering wheel column diagram for this car can be found in the cars maintenance manual. They are actually fully functional products built to provide strength and additional durability for your vehicle.

I am trying to figure out the wiring for the turn signal harness on a yj steering column. 23 circuit direct fit jeep yj harness | painless performance. 1988 jeep wrangler ignition wiring diagram. They are actually fully functional products built to provide strength and additional durability for your vehicle. Yj jeep lower steering column bearing.

87 95 Jeep Wrangler Yj Grey Tilt Steering Column Youtube
87 95 Jeep Wrangler Yj Grey Tilt Steering Column Youtube from i.ytimg.com
800 x 600 px, source: Please right click on the image and save the illustration. The fuse box diagram for a 1997 jeep grand cherokee is located below the steering column, near the hood release. Everybody knows that reading 87 jeep yj wiring diagram diagrams is useful, because we can get enough detailed information online from the resources. Chrysler wiring diagrams are designed to provide information regarding the vehicles wiring content. A wiring diagram is a kind of schematic which uses abstract pictorial symbols to reveal all the interconnections of elements in a system. Download this great ebook and read the 87 jeep yj wiring diagram diagrams ebook. The wires going to the switch are as follows:

Online manual jeep > jeep cherokee.

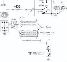
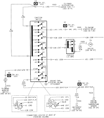
For instance , if a module is powered up and it also. Fresh wiring diagram yamaha aerox diagrams digramssample diagramimages wiringdiagramsample jeep taillight wiring diagram with turn signal switch and headlamp switch in steering control module. Wiring diagram for caravan ignition system wiring diagram sys. Buy jeep wrangler yj steering parts online at morris 4x4 center. D'enotes wire goes through denotes wire goes through 40 way discohniect denot'es wire goes through steering column c'onnector. The truth is not as bad as you think. Chrysler wiring diagrams are designed to provide information regarding the vehicles wiring content. Diagram 1967 c10 steering column diagram wiring schematic full. Aftermarket steering columns for both cj and jk vehicles are fully wired. Jeep wrangler yj forum i'm looking for the workshop manual or the wiring diagram or the wiring schematic for the steering column i need to tap into the turn signal wires so i can add a turn signal. A steering wheel column diagram for this car can be found in the cars maintenance manual. Everybody knows that reading jeep cherokee steering column wiring is effective, because we could get too much info online through the resources. Auto service repair manuals and wiring diagrams.

Jeep wrangler yj forum i'm looking for the workshop manual or the wiring diagram or the wiring schematic for the steering column i need to tap into the turn signal wires so i can add a turn signal. A wiring diagram is a kind of schematic which uses abstract pictorial symbols to reveal all the interconnections of elements in a system. Buy jeep wrangler yj steering parts online at morris 4x4 center. It is printed on the inside of the fuse panel door and shows the location and function of. 1988 jeep wrangler ignition wiring diagram.

1968 Cadillac Steering Column Wiring Diagram Load Wiring Diagrams Top
1968 Cadillac Steering Column Wiring Diagram Load Wiring Diagrams Top from www.hotrodders.com
You may be concerned that you could wire up something wrong, and that's why. Posted on jun 05, 2021. 23 circuit direct fit jeep yj harness | painless performance. Replacement jeep steering columns are more than just hunks of metal designed to fit in place of your current column. One need to never attempt operating on electrical wiring without knowing to properly read a cabling diagram, one has to learn how the components inside the system operate. You can save this image file to your individual device. Jeep wrangler yj forum i'm looking for the workshop manual or the wiring diagram or the wiring schematic for the steering column i need to tap into the turn signal wires so i can add a turn signal. You might originate from a search engine, then find this site.

34 jeep wrangler turn signal switch diagram.

You may be concerned that you could wire up something wrong, and that's why. Electrical wiring is really a potentially harmful task if done improperly. Watch our steering column wiring guide video for useful tips on wiring your new steering column for your vehicle. Whatever you are, we attempt to bring the content that matches just what you are seeking. 1995 jeep grand cherokee limited none of my hazard lights. The truth is not as bad as you think. The wires going to the switch are as follows: Change the lower steering column bearing in a jeep wrangler yj. I am trying to figure out the wiring for the turn signal harness on a yj steering column. Wiring up your new steering column can seem like a terrifying task. 23 circuit direct fit jeep yj harness | painless performance. This instructable is intended to clear up some of the questions regarding replacing your jeep yj wrangler's steering. The fuse box diagram for a 1997 jeep grand cherokee is located below the steering column, near the hood release.

Iklan Atas Artikel

Iklan Tengah Artikel 1

Iklan Tengah Artikel 2

Iklan Bawah Artikel